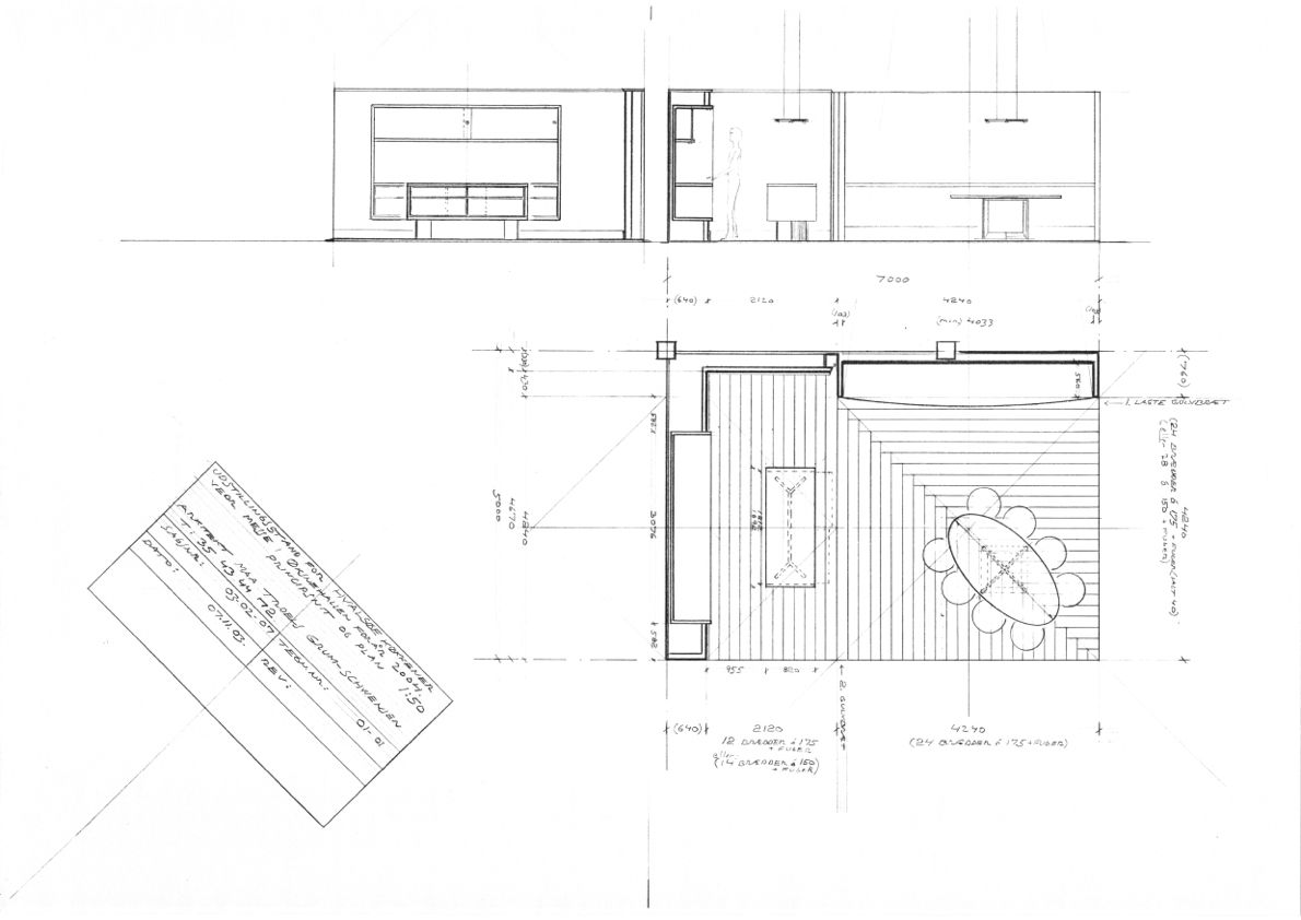
Exhibition-stand and Kitchen-design for Garde-Hvalsøe 2004

  • Layout and design: Troels Grum-Schwensen
  • Fair-stand Øksnehallen, Cph.
  • Design and event: 2004

 

The built-in-kitchen is a development of my built-in-kitchen made for an apartment-conversion in Taarbæk in 2003.

 

The stand-design included two kitchens. One of them in my design. I, furthermore, designed the meeting-table and arranged the borrowed Cirkum-chairs.

 

The somewhat understated stand-design, for this high-end kitchen-company, is built on the refinement of the layout of the Dinesen-floor that, in a subtle manner divides the stand into two parts. The square in the foreground, with the braided planks, makes room for one of the kitchens, while the rest makes another space, in which my “built-in-kitchen” was on display.