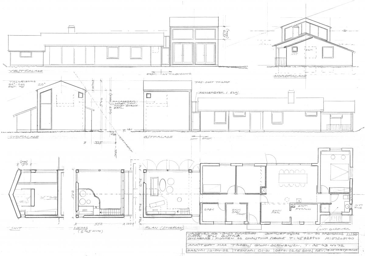
Residential extension with forest view

  • Architecture by Troels Grum-Schwensen
  • Project: 2010
  • Building-process: 2011

 

Extension for existing private house. By going to the limits, regarding rules for area and height, I succeeded in my goal of establishing not only a room with much more light and spatial feeling than anywhere in the existing house, but also a small “inserted” platform (“loft” / “entresole”) from which there is a view of the beautiful forest on the other side of the street – above the roof of the existing house (which is situated  lower than the street and thus not having this view).

 

The black, vertical cladding on the outside of the extension, creates a kind of connection to the slim, vertical beech-trunks in the forest on the north-side of the street.